Trang chủ > Cho thuê kho, nhà xưởng, đất > Tây Ninh > Bến Cầu

Cho Thuê Nhà Xưởng – KCN Mộc Bài, Bến Cầu, TN – 22.989m²

Khu vực: Bến Cầu- Tây Ninh

Giá: Thỏa thuận    Diện tích: 

Thông tin mô tả

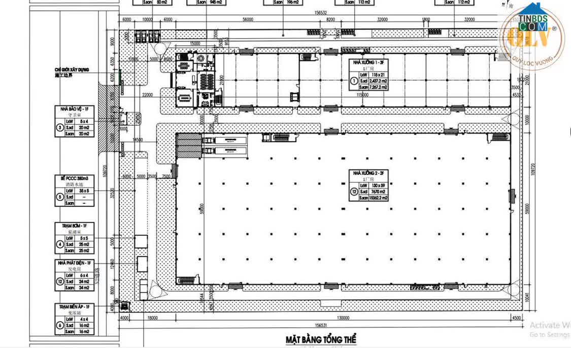
CHO THUÊ NHÀ XƯỞNG – KCN MỘC BÀI, BẾN CẦU, TN – 22. 989m²

Thông tin chi tiết
Vị trí: Khu công nghiệp Mộc Bài, Huyện Bến Cầu, Tỉnh Tây Ninh
Tổng diện tích khuôn viên: 17. 174m²

Diện tích xây dựng: 22. 989m², bao gồm:
Xưởng 1: 7. 627m² (3 tầng, diện tích sàn: 2. 437m²/tầng)
Xưởng 2: 15. 362m² (2 tầng, diện tích sàn: 7. 692m²/tầng)
Văn phòng: 945m²

Tiện ích & hạ tầng:
Kết cấu nhà xưởng kiên cố, thiết kế nhiều tầng, tối ưu diện tích sử dụng
Hệ thống điện, nước, PCCC đầy đủ
Đường nội bộ rộng, xe container ra vào thuận tiện
Nằm trong KCN Mộc Bài, vị trí chiến lược gần cửa khẩu, thuận lợi cho xuất nhập khẩu
Phù hợp nhiều ngành nghề sản xuất, kho bãi, logistics

Để biết thêm thông tin chi tiết vui lòng liên hệ:
CTY TNHH MTV QUÝ LỘC VƯỢNG
Hotline: 0931 769 444
Website: https://nhaxuongchinhchu.vn

Thông tin bất động sản

Địa chỉ
Bến Cầu, Tây Ninh
Address
Ben Cau, Tay Ninh Province
Ngày đăng tin
11/2/2026
Ngày hết hạn
10/8/2026

Liên hệ

Tên liên lạc
Điện thoại
0911.493.768 / 0911 493 768
Địa chỉ liên hệ
Bình Dương
Contact address
BINH DUONG Province

Cho thuê kho, nhà xưởng, đất tại Bến Cầu - Tây Ninh

Quận huyện trực thuộc Tây Ninh

Phường xã trực thuộc Bến Cầu

Ghi chú về Cho Thuê Nhà Xưởng – KCN Mộc Bài, Bến Cầu, TN – 22.989m²

Thông tin về Cho Thuê Nhà Xưởng – KCN Mộc Bài, Bến Cầu, TN – 22.989m² liên tục được cập nhật tại tinbds.com. Nếu bạn thấy thông tin không chính xác hoặc có dấu hiệu lừa đảo, vui lòng báo với ban quản trị website tinbds.com. Chúng tôi xin chân thành cảm ơn đóng góp của bạn.
Từ khóa tìm kiếm:
CHO THUÊ NHÀ XƯỞNG – KCN MỘC BÀI, BẾN CẦU, TN – 22. 989m² Thông tin chi tiết Vị trí: Khu công nghiệp Mộc Bài, Huyện Bến Cầu, Tỉnh Tây Ninh Tổng diện tích khu..