Trang chủ > Cho thuê căn hộ chung cư > Hà Nội > Nam Từ Liêm > An Bình Plaza

Chính Chủ Cho Thuê Căn Hộ Mini Ngõ 322 Mỹ Đình – 1 Phòng Ngủ, Full Nội Thất

Khu vực: Nam Từ Liêm- Hà Nội- Dự án: An Bình Plaza

Giá: 4.3 triệu/ tháng    Diện tích: 18 m²

Thông tin mô tả

CHÍNH CHỦ CHO THUÊ CĂN HỘ MINI NGÕ 322 MỸ ĐÌNH – 1 PHÒNG NGỦ, FULL NỘI THẤT
*Địa chỉ: Ngõ 322 Mỹ Đình, phường Mỹ Đình 2, quận Nam Từ Liêm, Hà Nội
*Hướng: Đông Bắc
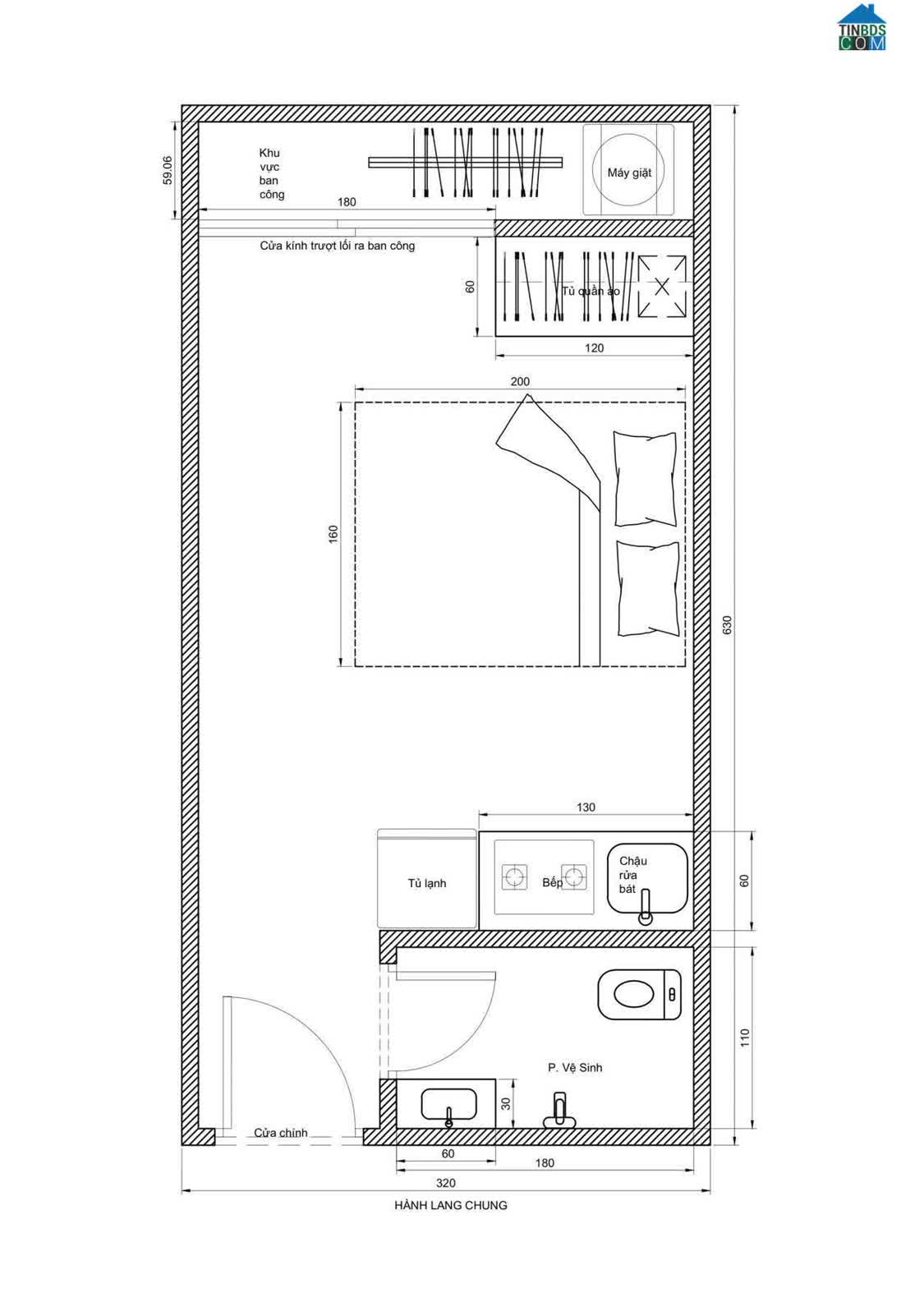
*Diện tích: 18 m²
*Giá thuê: 4,3 triệu/tháng – đóng 1 tháng cọc, 1 tháng nhà
*Mô tả căn hộ
-Căn hộ dịch vụ mini, thiết kế 1 phòng ngủ riêng biệt, thoáng và sạch sẽ.
-Full nội thất: giường, tủ, điều hòa, bình nóng lạnh, bếp...
-Căn hộ mới đẹp, không gian yên tĩnh, an ninh tốt, giờ giấc tự do.
-Có chỗ để xe rộng rãi, khu dân trí cao.
-Đặc biệt: được nuôi pet nhỏ.
*Vị trí thuận tiện
-Nằm ngay trung tâm khu Mỹ Đình, di chuyển dễ dàng ra Phạm Hùng, bến xe Mỹ Đình, Keangnam, The Garden, SVĐ Mỹ Đình.
-Gần chợ, siêu thị, cửa hàng tiện lợi, trường học, khu văn phòng.
*Liên hệ chính chủ: 0333203111 (để trao đổi)
*Xách vali vào ở ngay – số lượng căn có hạn!

Thông tin bất động sản

Thuộc dự án
Địa chỉ
Đường Mỹ Đình, Mỹ Đình 2
Address
My Dinh Street, My Dinh 2, Ha Noi City
Số phòng ngủ
1
Số phòng vệ sinh
1
Ngày đăng tin
10/11/2025
Ngày hết hạn
10/12/2025

Liên hệ

Tên liên lạc
Điện thoại
0203.3203.111 / 0364 230 256
Địa chỉ liên hệ
Hà Nội
Contact address
Thuong Tin District, Ha Noi City

Cho thuê căn hộ chung cư tại An Bình Plaza

Quận huyện trực thuộc Hà Nội

Phường xã trực thuộc Nam Từ Liêm

Ghi chú về Chính Chủ Cho Thuê Căn Hộ Mini Ngõ 322 Mỹ Đình – 1 Phòng Ngủ, Full Nội Thất

Thông tin về Chính Chủ Cho Thuê Căn Hộ Mini Ngõ 322 Mỹ Đình – 1 Phòng Ngủ, Full Nội Thất liên tục được cập nhật tại tinbds.com. Nếu bạn thấy thông tin không chính xác hoặc có dấu hiệu lừa đảo, vui lòng báo với ban quản trị website tinbds.com. Chúng tôi xin chân thành cảm ơn đóng góp của bạn.
Từ khóa tìm kiếm:
CHÍNH CHỦ CHO THUÊ CĂN HỘ MINI NGÕ 322 MỸ ĐÌNH – 1 PHÒNG NGỦ, FULL NỘI THẤT *Địa chỉ: Ngõ 322 Mỹ Đình, phường Mỹ Đình 2, quận Nam Từ Liêm, Hà Nội *Hướng: Đông..