The Inter5
Quy mô: 1,73 ha
Loại dự án: Khu phức hợp
Address: 187, Ton Duc Thang Street, An Dong Ward, An Duong District, Hai Phong City
Thông tin tổng quan
he Inter5 là dự án nhà ở thương mại, dịch vụ kết hợp căn hộ cao tầng, tọa lạc tại số 187 Tôn Đức Thắng, xã An Đồng, huyện An Dương.
Chủ đầu tư: Công ty TNHH Đầu tư FANTASEA.
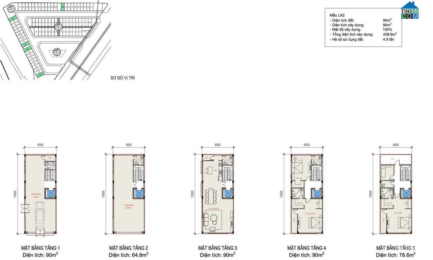
Quy mô dự án: 1.7 ha.
Thành phần:
76 căn thương mại liền kề, shophouse.
Tòa chung cư cao 24 tầng nổi.

Chi tiết dự án The Inter5
Mặt Bằng - Thiết Kế
Dự án The Inter5 có tổng diện tích 17. 332 m², được phân bổ cho các hạng mục như sau:
-
Đất nhà ở liền kề: 7. 351 m²
-
Đất xây dựng tòa nhà hỗn hợp: 2. 226 m²
-
Đất cây xanh: 2. 036 m²
-
Đất giao thông: 5. 944 m²
Sản phẩm cung cấp: 76 căn nhà phố thương mại liền kề và một tòa chung cư cao 24 tầng (The Inter5 Residences).
Khu nhà phố liền kề được chia thành hai phân khu:
-
Victory: 34 căn, diện tích từ 96 m² – 126 m²
-
Legacy: 42 căn, diện tích từ 90 m² – 113,9 m²







Tiện Ích
Dự án The Inter5 được đầu tư hệ thống tiện ích phong phú, phục vụ nhu cầu thư giãn, giải trí và luyện tập của cư dân:
Khu Vườn và Cảnh quan:
Đồi nghệ thuật và biểu tượng The Inter5
Vườn tường vi
Vườn mẫu đơn
Vườn lộc vừng
Khu Thư giãn và Nghỉ ngơi:
Chòi nghỉ
Xích đu
Ghế nghỉ
Khu thư giãn ngoài trời
Khu Thể thao và Giao thông:
Máy tập thể thao ngoài trời
Đường dạo/Đường đi bộ
Cổng chào

Bản đồ vị trí dự án The Inter5
Hình ảnh dự án The Inter5









Xem thêm:
Ghi chú về dự án The Inter5
Từ khóa tìm kiếm:
The Inter5, địa chỉ: 187 Phố Tôn Đức Thắng, Phường An Đồng, Quận An Dương, Hải Phòng.. Address: 187, Ton Duc Thang Street, An Dong Ward, An Duong District,...
Xem trên Google Maps