Trang chủ > Cho thuê kho, nhà xưởng, đất > Bình Phước > TP. Đồng Xoài

Cho thuê nhà xưởng CCN Tiến Hưng, Đồng Xoài, Bình Phước 18.936m²

Khu vực: Đồng Xoài- Bình Phước

Giá: 62 nghìn/ m²/ tháng    Diện tích: 18936 m²

Thông tin mô tả

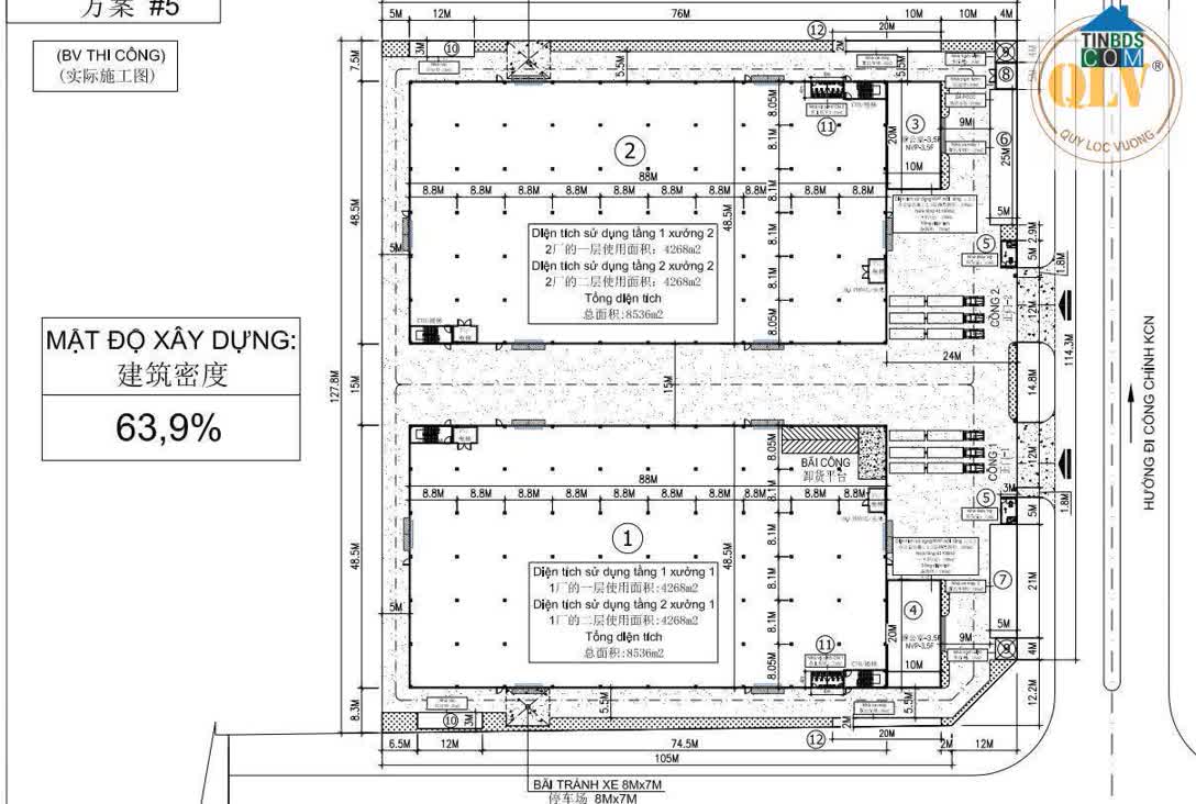
Cho thuê nhà xưởng – CCN Tiến Hưng, Đồng Xoài, Bình Phước – 18. 936m²
Thông tin chi tiết
Vị trí: Cụm Công Nghiệp Tiến Hưng, TP. Đồng Xoài, Bình Phước
Tổng diện tích khuôn viên: 14. 789m²
Tổng diện tích xây dựng: 18. 936m²
Trong đó
Nhà xưởng 1: DTXD 9. 236m² (1 trệt 1 lầu: 4. 268m² + 4. 268m²), văn phòng 700m² (3.5 tầng), có 2 thang máy, bình điện 400 KVA, bãi xe công và các công trình phụ trợ khác
Nhà xưởng 2: DTXD 9. 236m² (1 trệt 1 lầu: 4. 268m² + 4. 268m²), văn phòng 700m² (3.5 tầng), có 2 thang máy, bình điện 400 KVA, bãi xe công và các công trình phụ trợ khác
Tiện ích & đặc điểm
Kết cấu nhà xưởng kiên cố, thiết kế 2 tầng, phù hợp đa ngành nghề
Đường nội bộ rộng rãi, xe container ra vào thuận tiện
Hệ thống hạ tầng điện – nước – PCCC đạt chuẩn
Nằm trong CCN Tiến Hưng, an ninh tốt, thuận lợi sản xuất
Liên hệ
CÔNG TY TNHH MTV QUÝ LỘC VƯỢNG
Hotline: 0931 769 444
Website: https://nhaxuongchinhchu.vn

Thông tin bất động sản

Địa chỉ
Tp. Đồng Xoài, Bình Phước
Address
Dong Xoai City, Binh Phuoc Province
Ngày đăng tin
6/3/2026
Ngày hết hạn
2/9/2026

Liên hệ

Tên liên lạc
Điện thoại
0911.493.768 / 0911 493 768
Địa chỉ liên hệ
Bình Dương
Contact address
BINH DUONG Province

Cho thuê kho, nhà xưởng, đất tại Đồng Xoài - Bình Phước

Quận huyện trực thuộc Bình Phước

Phường xã trực thuộc Đồng Xoài

Ghi chú về Cho thuê nhà xưởng CCN Tiến Hưng, Đồng Xoài, Bình Phước 18.936m²

Thông tin về Cho thuê nhà xưởng CCN Tiến Hưng, Đồng Xoài, Bình Phước 18.936m² liên tục được cập nhật tại tinbds.com. Nếu bạn thấy thông tin không chính xác hoặc có dấu hiệu lừa đảo, vui lòng báo với ban quản trị website tinbds.com. Chúng tôi xin chân thành cảm ơn đóng góp của bạn.
Từ khóa tìm kiếm:
Cho thuê nhà xưởng – CCN Tiến Hưng, Đồng Xoài, Bình Phước – 18. 936m² Thông tin chi tiết Vị trí: Cụm Công Nghiệp Tiến Hưng, TP. Đồng Xoài, Bình Phước Tổng di..