Địa chỉ: Số 98-100 Đường Hà Huy Giáp, Phường Trung Dũng, Thành phố Biên Hòa, Tỉnh Đồng Nai.
Loại dự án: Căn hộ chung cư
Loại dự án: Căn hộ chung cư
Sáng ngày 30/3/2026, Tập đoàn BĐS An Gia (đơn vị phát triển dự án) đã tổ chức lễ động thổ dự án River Collection. Đây là dự án căn hộ cao cấp kết hợp thương mại dịch vụ, tọa lạc ven sông Đồng Nai, thuộc phường Biên Hòa, tỉnh Đồng Nai, do Công ty TNHH Dream Home Hóa An làm chủ đầu tư.
River Collection được quy hoạch gồm 2 block cao 30 tầng nổi và 2 tầng hầm, cung cấp tổng cộng 922 căn hộ ra thị trường.
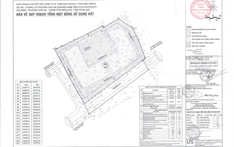
River Collection được xây dựng trên khu đất có tổng diện tích 9. 345,2m², trong đó diện tích đất thực hiện dự án khoảng 7. 837,3m² và phần đất thuộc quy hoạch giao thông khoảng 1. 507,9m². Dự án gồm 2 block cao 30 tầng nổi và 2 tầng hầm, cung cấp tổng cộng 922 căn hộ.
Thông số xây dựng:
Thiết kế tòa tháp:

River Collection được đầu tư hệ thống tiện ích đa dạng và cao cấp như hồ bơi vô cực tràn viền 3 mặt view sông trên tầng thượng, 2 sân pickleball trên không ở độ cao khoảng 100m, trường mầm non, trung tâm thương mại và sảnh đón khách thiết kế theo tiêu chuẩn 5 sao.








Địa chỉ: Số 98-100 Đường Hà Huy Giáp, Phường Trung Dũng, Thành phố Biên Hòa, Tỉnh Đồng Nai.
Loại dự án: Căn hộ chung cư
Địa chỉ: Phường Tân Vạn, Thành phố Biên Hòa, tỉnh Đồng Nai.
Diện tích 7. 913 m²
Số tòa 3 tòa
Loại dự án: Căn hộ chung cư