Trang chủ > Cho thuê kho, nhà xưởng, đất > Đồng Nai > Trảng Bom

Cho Thuê Nhà Xưởng – KCN Sông Mây, Đn – 9.344m²

Khu vực: Trảng Bom- Đồng Nai

Giá: 104 nghìn/ m²/ tháng    Diện tích: 9344 m²

Thông tin mô tả

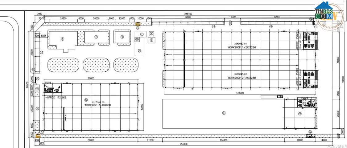
CHO THUÊ NHÀ XƯỞNG – KCN SÔNG MÂY, ĐN – 9. 344m²

Thông tin chi tiết
Vị trí: Khu Công Nghiệp Sông Mây, Huyện Trảng Bom, Tỉnh Đồng Nai
Tổng diện tích khuôn viên: 25. 000m²
Tổng diện tích xây dựng: 9. 344m² (gồm 2 nhà xưởng)
Tiến độ: Đang hoàn thiện giấy phép xây dựng, dự kiến bàn giao tháng 7/2026

Quy mô công trình
Xưởng 1: 3. 200m² (nhà máy 3. 087,5m², văn phòng 225m² – 1 trệt 1 lầu trong xưởng)
Xưởng 2: 6. 144m² (nhà máy 5. 844m², văn phòng 600m² – 1 trệt 1 lầu trong xưởng)
Chiều cao: 12,5m đỉnh mái – 10m biên
Trang bị 2 cẩu trục 5 tấn/xưởng, chạy dọc toàn bộ xưởng ở cao độ 7,5m

Tiêu chuẩn kỹ thuật
Hệ thống PCCC tự động chuẩn quốc tế (Sprinkler + báo cháy hiện đại)
Kết cấu khung thép tiền chế, sàn bê tông chịu tải cao, nền phẳng tiêu chuẩn xuất khẩu
Hệ thống điện 3 pha công suất lớn, thoát nước – cấp nước đạt chuẩn KCN
Đường nội bộ rộng, container 40 feet ra vào thuận tiện

Liên hệ
CÔNG TY TNHH MTV QUÝ LỘC VƯỢNG
Hotline: 0931 769 444
Website: https://nhaxuongchinhchu.vn

Thông tin bất động sản

Địa chỉ
Trảng Bom, Đồng Nai
Address
Trang Bom District, Dong Nai Province
Ngày đăng tin
7/5/2026
Ngày hết hạn
4/8/2026

Liên hệ

Tên liên lạc
Điện thoại
0931.769.444 / 0931 769 444
Địa chỉ liên hệ
Tân Phước Khánh, Tân Uyên, Đồng Nai
Contact address
Tan Phuoc Khanh, Tan Uyen District, Dong Nai Province

Cho thuê kho, nhà xưởng, đất tại Trảng Bom - Đồng Nai

Quận huyện trực thuộc Đồng Nai

Phường xã trực thuộc Trảng Bom

Ghi chú về Cho Thuê Nhà Xưởng – KCN Sông Mây, Đn – 9.344m²

Thông tin về Cho Thuê Nhà Xưởng – KCN Sông Mây, Đn – 9.344m² liên tục được cập nhật tại tinbds.com. Nếu bạn thấy thông tin không chính xác hoặc có dấu hiệu lừa đảo, vui lòng báo với ban quản trị website tinbds.com. Chúng tôi xin chân thành cảm ơn đóng góp của bạn.
Từ khóa tìm kiếm:
CHO THUÊ NHÀ XƯỞNG – KCN SÔNG MÂY, ĐN – 9. 344m² Thông tin chi tiết Vị trí: Khu Công Nghiệp Sông Mây, Huyện Trảng Bom, Tỉnh Đồng Nai Tổng diện tích khuô..