Trang chủ > Cho thuê kho, nhà xưởng, đất > Đồng Nai > Trảng Bom

Cho thuê nhà xưởng KCN Hố Nai 3, Trảng Bom, Đồng Nai 17.724m²

Khu vực: Trảng Bom- Đồng Nai

Giá: 117 nghìn/ m²/ tháng    Diện tích: 17724 m²

Thông tin mô tả

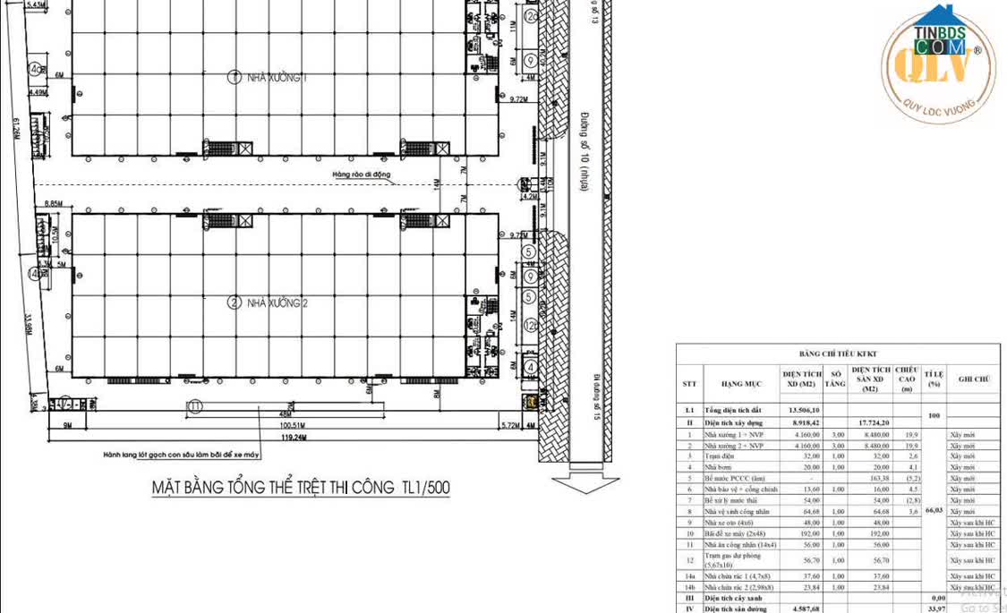
CHO THUÊ NHÀ XƯỞNG – KCN HỐ NAI 3, TRẢNG BOM, ĐỒNG NAI – 17. 724m²

Thông tin chi tiết
Vị trí: Khu Công Nghiệp Hố Nai 3, Huyện Trảng Bom, Tỉnh Đồng Nai
Tổng diện tích đất: 13. 506m²
Tổng diện tích xây dựng: 17. 724m², bao gồm
Xưởng 1: 8. 480m² (1 trệt, 1 lầu – 40m x 104m) + văn phòng 160m²
Xưởng 2: 8. 480m² (1 trệt, 1 lầu – 40m x 104m) + văn phòng 160m²
Chiều cao tầng 1: 8m
Chiều cao diềm mái: 15.5m
Chiều cao đỉnh mái: 19.4m
Cùng các công trình phụ trợ khác (nhà bảo vệ, trạm điện, bể PCCC, nhà xe, sân bãi... )

Tiện ích
Nhà xưởng kết cấu vững chắc, tiêu chuẩn công nghiệp nặng
Hệ thống PCCC tự động đạt chuẩn quốc tế
Đường nội bộ rộng, xe container ra vào thuận tiện
Hệ thống điện, nước, xử lý nước thải đầy đủ
Vị trí đắc địa, thuận tiện di chuyển đến TP. HCM, Bình Dương, Long Thành

Liên hệ
CÔNG TY TNHH MTV QUÝ LỘC VƯỢNG
Hotline: 0931 769 444
Website: https://nhaxuongchinhchu.vn

Thông tin bất động sản

Địa chỉ
Trảng Bom, Đồng Nai
Address
Trang Bom District, Dong Nai Province
Ngày đăng tin
28/2/2026
Ngày hết hạn
27/8/2026

Liên hệ

Tên liên lạc
Điện thoại
0911.840.277 / 0911 840 277
Địa chỉ liên hệ
Phường Mỹ Phước, Thị xã Bến Cát, Bình Dương
Contact address
My Phuoc Ward, Ben Cat Town, Binh Duong Province

Cho thuê kho, nhà xưởng, đất tại Trảng Bom - Đồng Nai

Quận huyện trực thuộc Đồng Nai

Phường xã trực thuộc Trảng Bom

Ghi chú về Cho thuê nhà xưởng KCN Hố Nai 3, Trảng Bom, Đồng Nai 17.724m²

Thông tin về Cho thuê nhà xưởng KCN Hố Nai 3, Trảng Bom, Đồng Nai 17.724m² liên tục được cập nhật tại tinbds.com. Nếu bạn thấy thông tin không chính xác hoặc có dấu hiệu lừa đảo, vui lòng báo với ban quản trị website tinbds.com. Chúng tôi xin chân thành cảm ơn đóng góp của bạn.
Từ khóa tìm kiếm:
CHO THUÊ NHÀ XƯỞNG – KCN HỐ NAI 3, TRẢNG BOM, ĐỒNG NAI – 17. 724m² Thông tin chi tiết Vị trí: Khu Công Nghiệp Hố Nai 3, Huyện Trảng Bom,..