Địa chỉ: Phường Trần Phú, Quận Hoàng Mai, tp. Hà Nội.
Số căn hộ 540 căn
Diện tích 1,54 ha
Số tòa 3 tòa
Chủ đầu tư Tổng Công ty Đầu tư và Phát triển nhà Hà Nội (HANDICO)
Loại dự án: Căn hộ chung cư
Loại dự án: Căn hộ chung cư
The One Complex là dự án chung cư cao cấp tọa lạc ngay mặt tiền đường Định Công, Hoàng Mai.
Chủ đầu tư: Liên doanh Công ty Cổ phần Dịch vụ Vận tải Đường Sắt và Công ty Cổ phần Đầu tư Xây dựng Phát triển Kiến Trúc Hà Nội.
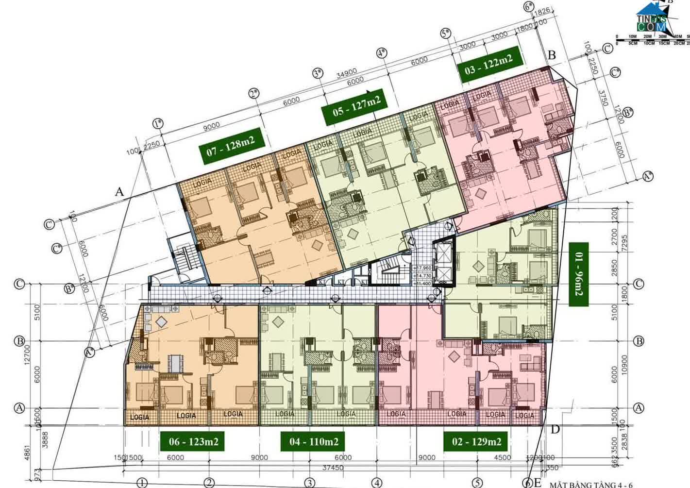
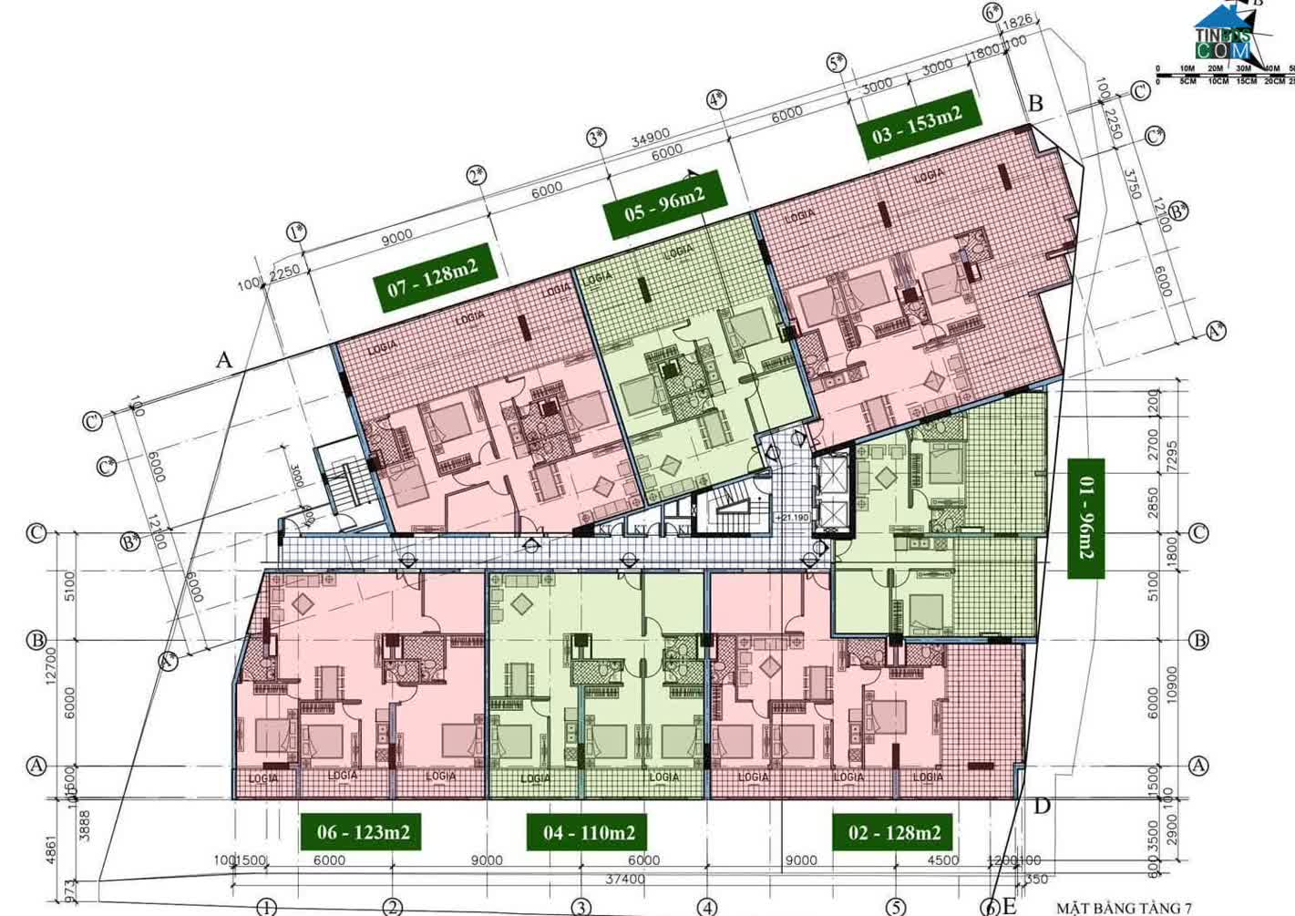
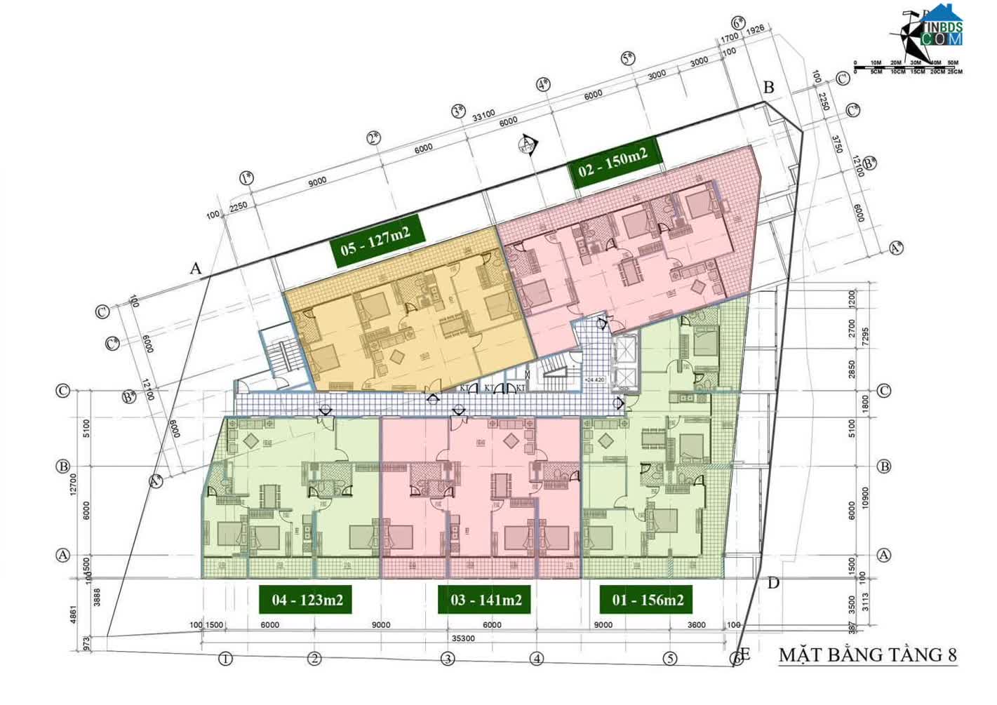
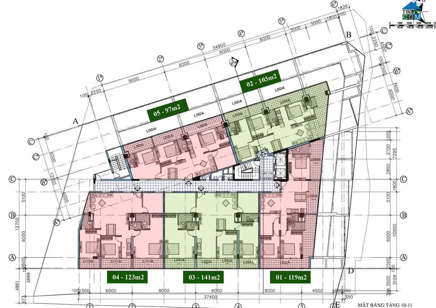
Quy mô: 11 tầng nổi và 02 tầng hầm.
Mật độ căn hộ: Thấp, chỉ 5-7 căn/sàn.
Thiết kế: Hiện đại, giúp tối ưu nguồn ánh sáng tự nhiên và không gian sử dụng.

Dự án The One Complex được xây dựng trên tổng diện tích đất là 1. 300 m², bao gồm một tòa tháp cao 11 tầng nổi và 02 tầng hầm.
Tầng 1: Khu thương mại (kiot).
Tầng 2 - 11: Tầng căn hộ ở.
Mật độ căn hộ: Thấp, chỉ 5-7 căn/tầng.
Diện tích căn hộ: Đa dạng, từ 80 m² - 156 m².
Bàn giao căn hộ: Có hai lựa chọn là bàn giao nội thất cơ bản hoặc bàn giao thô.





Dự án The One Complex không chỉ thu hút nhờ vị trí đắc địa mà còn gây ấn tượng mạnh mẽ bởi hệ thống tiện ích cơ bản đáp ứng đầy đủ nhu cầu sống hiện đại. Cư dân tại đây sẽ được tận hưởng:
Khu thương mại sầm uất, nơi tập trung nhiều cửa hàng, dịch vụ mua sắm và giải trí đa dạng.
Phòng gym hiện đại, trang bị đầy đủ thiết bị giúp cư dân rèn luyện sức khỏe mỗi ngày.
Khu vui chơi trẻ em an toàn, sáng tạo, mang đến không gian phát triển toàn diện cho các bé.
Với những tiện ích này, Dự án The One Complex mang đến môi trường sống chất lượng, tiện nghi và phù hợp cho mọi lứa tuổi.
Tuyệt vời, đây là thông tin về vị trí dự án The One Complex được viết lại dưới dạng text:
Dự án The One Complex tọa lạc tại Số 1 đường Định Công, phường Thịnh Liệt, quận Hoàng Mai, Hà Nội.
Vị trí này được đánh giá là thuận lợi:
Nằm sát đường Giải Phóng, là cửa ngõ phía Nam Thủ Đô.
Gần đường Vành Đai 2.5.
Gần bến xe Giáp Bát.








Địa chỉ: Phường Trần Phú, Quận Hoàng Mai, tp. Hà Nội.
Số căn hộ 540 căn
Diện tích 1,54 ha
Số tòa 3 tòa
Chủ đầu tư Tổng Công ty Đầu tư và Phát triển nhà Hà Nội (HANDICO)
Loại dự án: Căn hộ chung cư
Địa chỉ: Đường Vĩnh Hưng, Phường Thanh Trì, Quận Hoàng Mai, thành phố Hà Nội.
Số căn hộ 618 căn
Diện tích 1,02 ha
Số tòa 2 tòa
Loại dự án: Căn hộ chung cư
Địa chỉ: Phường Yên Sở, Quận Hoàng Mai, Tp. Hà Nội.
Số căn hộ 798 căn
Diện tích 6. 087 m²
Số tòa 1 tòa
Loại dự án: Căn hộ chung cư