Golden Boulevard là dự án nhà phố liền kề thương mại, tọa lạc trong khu dân cư Hòa Lợi, phường Hòa Phú, TP. Thủ Dầu Một, tỉnh Bình Dương (nay thuộc phường Bình Dương, TP. Hồ Chí Minh). Dự án do TDC Becamex làm chủ đầu tư, phát triển với tổng số 168 căn nhà phố liền kề và nhà phố thương mại.
Golden Boulevard
Loại dự án: Shophouse
Address: Le Loi Street, Hoa Phu Ward, Thu Dau Mot City, Binh Duong Province
Thông tin tổng quan

Chi tiết dự án Golden Boulevard
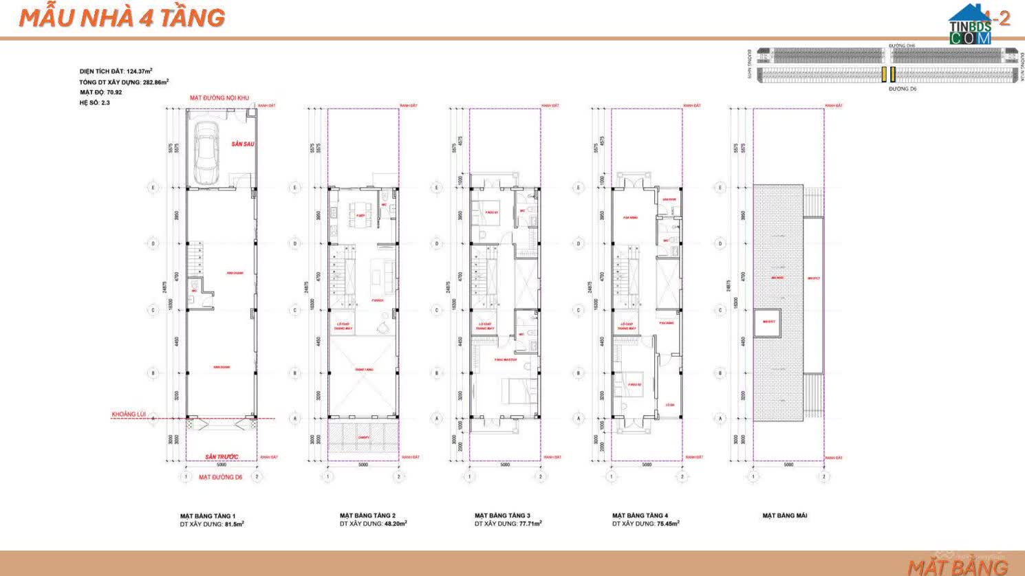
Thiết Kế - Mặt Bằng
-
Quy mô: 12. 168,5 m²
-
Mật độ xây dựng: khoảng 60%
-
Loại hình sản phẩm: Nhà phố liền kề và nhà phố thương mại
-
Số lượng sản phẩm: 168 căn
-
84 căn nhà 3 tầng
-
84 căn nhà 4 tầng
-

Thiết kế – Nhà mẫu
-
Phong cách: Địa Trung Hải, thiết kế 2 mặt tiền với đường giao thông nội khu chạy giữa hai dãy nhà
-
Bàn giao: Hoàn thiện bên ngoài, thô bên trong
-
Kích thước: 5x20m, 6x20m, 5x24m, 6x24m, 8,8x20,7m
-
Diện tích đất: 103 – 171 m²
-
Diện tích GFA: 197 – 233 m²
-
Kết cấu: 1 trệt + 2 lầu hoặc 1 trệt + 3 lầu











Tiện Ích
Golden Boulevard được quy hoạch với mảng xanh phủ khắp không gian sống, mang đến môi trường yên bình nhưng đầy đủ tiện nghi:
-
Hệ thống đường nội khu rộng rãi
-
Cảnh quan kết hợp hài hòa giữa thiên nhiên và kiến trúc hiện đại
-
Mỗi khu vực sinh hoạt được bố trí tiện nghi và đảm bảo sự riêng tư
Tiện ích ngoại khu và giao thông
Dự án sở hữu vị trí thuận lợi trên đường Lê Lợi rộng 30 m – tuyến đường chính kết nối trực tiếp đến trung tâm TP. Thủ Dầu Một. Ngoài ra, dự án gần các trục giao thông huyết mạch như Quốc lộ 19 và Tỉnh lộ DT 741, giúp cư dân dễ dàng di chuyển đến các khu công nghiệp, trung tâm thương mại và các tỉnh lân cận.
Bản đồ vị trí dự án Golden Boulevard

Hình ảnh dự án Golden Boulevard














Xem thêm:
- Nhà đất bán tại Thành phố Thủ Dầu Một
- Bán nhà riêng tại Thành phố Thủ Dầu Một
- Bán đất tại Thành phố Thủ Dầu Một
- Bán căn hộ chung cư tại Thành phố Thủ Dầu Một
- Bán nhà mặt phố tại Thành phố Thủ Dầu Một
- Nhà đất cho thuê tại Thành phố Thủ Dầu Một
- Tin BĐS tại Tỉnh Bình Dương
- Tổng quan về Thành phố Thủ Dầu Một
- Nhà môi giới BĐS tại Thành phố Thủ Dầu Một
Ghi chú về dự án Golden Boulevard
Từ khóa tìm kiếm:
Golden Boulevard, địa chỉ: Đường Lê Lợi, Phường Hòa Phú, Thành phố Thủ Dầu Một, Bình Dương.. Address: Le Loi Street, Hoa Phu Ward, Thu Dau Mot City, Binh...
Xem trên Google Maps