Golden Shophouse
Loại dự án: Shophouse
Address: Nguyen Thi Nhung Street, Hiep Binh Phuoc Ward, Thu Duc City, Ho Chi Minh City
Thông tin tổng quan

Chi tiết dự án Golden Shophouse
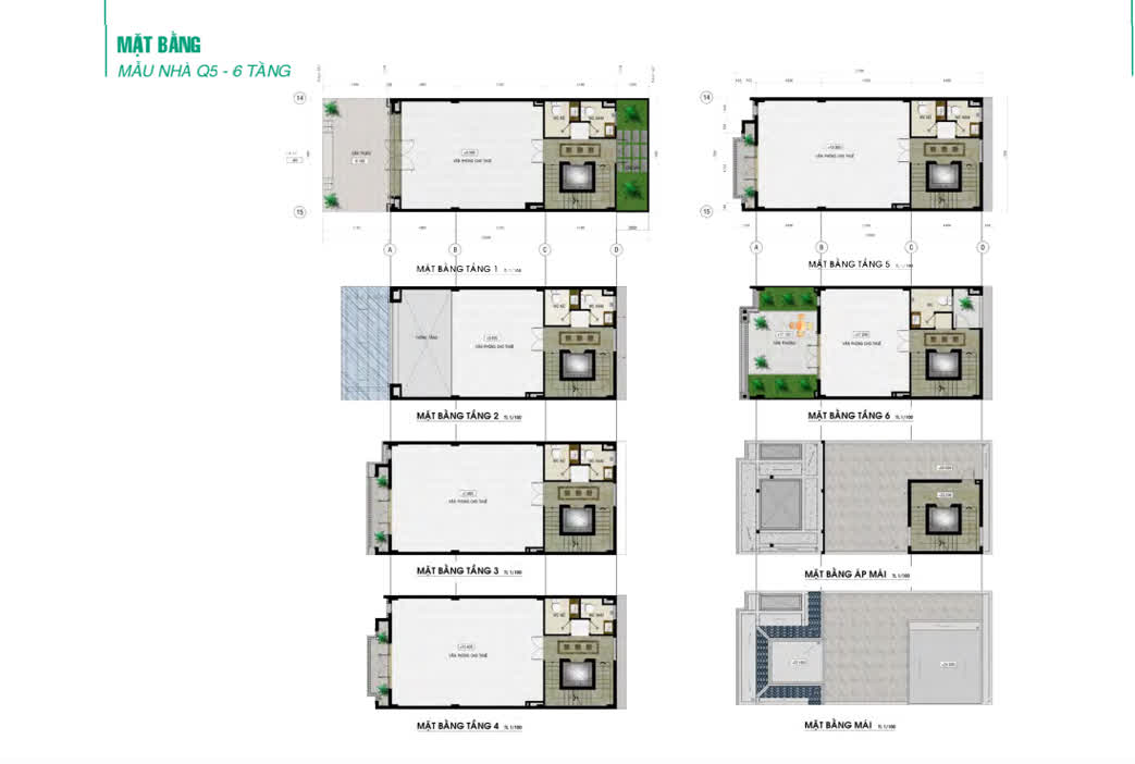
Mặt Bằng – Thiết Kế
Quy mô dự án: 35,3 ha
Loại hình sản phẩm: Nhà phố – Shophouse
Phong cách kiến trúc: Bán cổ điển sang trọng, hài hòa giữa nét tinh tế châu Âu và sự hiện đại trong thiết kế.
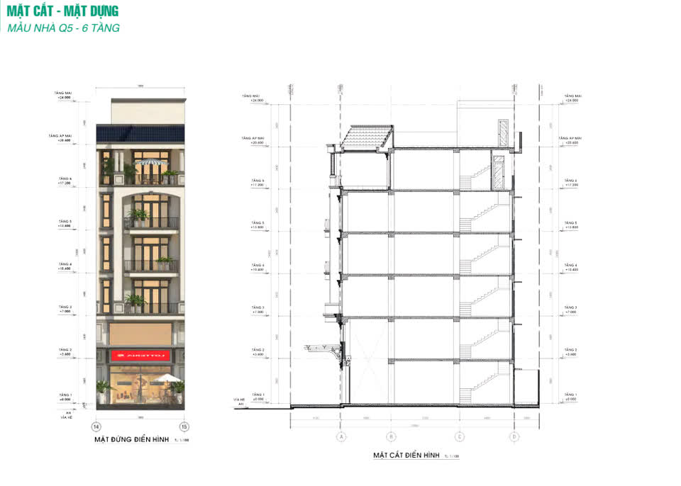
Kết cấu công trình:
-
Mặt tiền trục chính: cao 5 – 6 tầng
-
Mặt trong: gồm 1 tầng hầm + tầng trệt + 3 – 4 lầu + sân thượng
Diện tích đất: từ 140m² – 300m²
Diện tích sử dụng: khoảng 500m² – 600m²
Với quy mô và thiết kế ấn tượng, Golden Shophouse mang đến không gian sống kết hợp kinh doanh hoàn hảo, đáp ứng đa dạng nhu cầu an cư và đầu tư sinh lời của chủ sở hữu.















Tiện Ích
Với mô hình “thành phố trong lòng thành phố”, Golden Shophouse thuộc Vạn Phúc City được đầu tư đồng bộ và hiện đại, tích hợp hệ thống công trình chức năng, tiện ích và dịch vụ nội khu đạt chuẩn quốc tế, mang đến trải nghiệm sống – làm việc – giải trí trọn vẹn cho cư dân.
Tiện ích nổi bật:
-
Quảng trường hồ Đại Nhật – biểu tượng cảnh quan trung tâm, nơi diễn ra các sự kiện và hoạt động cộng đồng.
-
Trung tâm thương mại – không gian mua sắm, giải trí sầm uất ngay trong khuôn viên.
-
Clubhouse Kênh Sông Trăng – khu nghỉ dưỡng ven sông với nhà hàng, café và không gian thư giãn đẳng cấp.
-
Trường học quốc tế – hệ thống giáo dục hiện đại, đảm bảo chất lượng đào tạo toàn diện.
-
Khu thể dục thể thao, hồ bơi, công viên cây xanh – mang đến môi trường sống năng động và trong lành.
Golden Shophouse – Vạn Phúc City không chỉ là nơi an cư lý tưởng mà còn là điểm đến đầu tư tiềm năng, khẳng định phong cách sống thượng lưu giữa trung tâm Thủ Đức.






Bản đồ vị trí dự án Golden Shophouse

Hình ảnh dự án Golden Shophouse























Xem thêm:
Ghi chú về dự án Golden Shophouse
Từ khóa tìm kiếm:
Golden Shophouse, địa chỉ: Đường Nguyễn Thị Nhung, Phường Hiệp Bình Phước, Thành phố Thủ Đức, Hồ Chí Minh.. Address: Nguyen Thi Nhung Street, Hiep Binh...
Xem trên Google Maps